Ateneum Art Museum Extension
The Ateneum was extensively renovated in the 1980s and expanded in 2000, converting the former outdoor patio into an enclosed space for a bookshop and lobby.

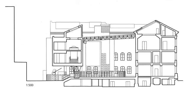
The Ateneum art museum was extensively renovated and altered in the 1980s. The patio, which had acted as an outdoor exhibition area, was converted to an indoor space to ease the congestion in the existing visitor-service facilities. Most of the area was enclosed for the bookshop, using a curved glass wall incorporating glass display shelving, visible from both inside and outside. Next to it is an open lobby area.
The existing courtyard character was retained by using an unaffected, modest, and simple glass-roof construction, which would not affect the external silhouette of the building. The glass roof, which has a fall of three degrees, is supported on lattice girders. The insulating-glass units were installed using a point-attachment system, with putty seams without glazing beads between the units. The glazing units span between the girders, with their centres supported by bracket beams on the girders. The structure of the areas between the girders is as light as possible. Warm air is blown onto the under-surface of the glass, to prevent the condensation of moisture.
The extension, completed in 2000, was designed by Laiho Pulkkinen Raunio Architects, who were also in charge of the Ateneum renovation and restoration 1979–1991.
Text: Finnish Architectural Review 3/2000
Location
Ateneuminkuja 1, Helsinki
Get directionsGallery























