Turku Art Museum
The art museum, completed in 1904 on Puolalanmäki hill, is a brick-and-granite building with two main exhibition floors. A later renovation and extension updated the museum’s technical systems, improved accessibility, and reinforced the original structure.

In 1885, the Turku Art Society received an anonymous donation for the building of an art museum. Architect Gustaf Nyströn won the two-stage architectural competition for the building organised in 1899. The brickwork frame building faced with granite on Puolalanmäki hill was completed in 1904.
Damage caused by damp started to appear in the exterior walls of the upper storey exhibition rooms in the 1960s, and these were repaired and repainted in a patchwork fashion. However, damage continued to appear both in the repaired surfaces and in new areas.
Up to the 1990s, problems caused by damp continued to trouble the walls, which inside had been faced with building panels, the roof lights leaked in places, and the dirty double windows of the roof were challenging to maintain. The exhibition and storage spaces did not meet the needs of modern museum activity in terms of heating, humidity and lighting conditions. Moreover, the accessibility was extremely poor, and it was difficult to transport artworks in and out of the museum.
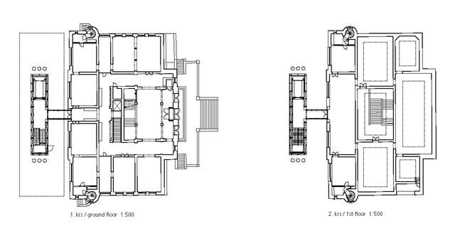
A stairwell and lift shaft was built from the museum’s basement through the rock up to the steel-glass tower, thus creating corridor connections to the two exhibition floors and the basement. We considered that a transparent, slender structure above ground would disturb the architecture of the massive stone building as little as possible.
The renovation was implemented only after completion of the extension. While inspecting the damage caused by damp it turned out that the whole natural stone finish of the façade would have to be removed in order to build the ventilation system behind. It was possible to restore the room division to its original form, and the building’s technical equipment was renewed so as to create the right conditions for the works of art.
The principal architect of the project was Ola Laiho. He was assisted by Tiitta Itkonen, Assi Sandelin, Philip Kronqvist, Tuomas Lemmetyinen, Marita Sederholm and Lea Vehviläinen. The building was completed in 2005.
Text: Finnish Architectural Review 3/2006
Location
Aurakatu 26, Turku
Get directionsGallery





















