Apartment in Padua

The 52 m2 apartment is situated in the oldest, medieval part of the city of Padua. The house itself is likely very old, but this apartment underwent significant modifications and was converted into an office space in the 1980s. In both Italy and Finland, many vacant and unsuitable office spaces could be potentially converted into residential use.
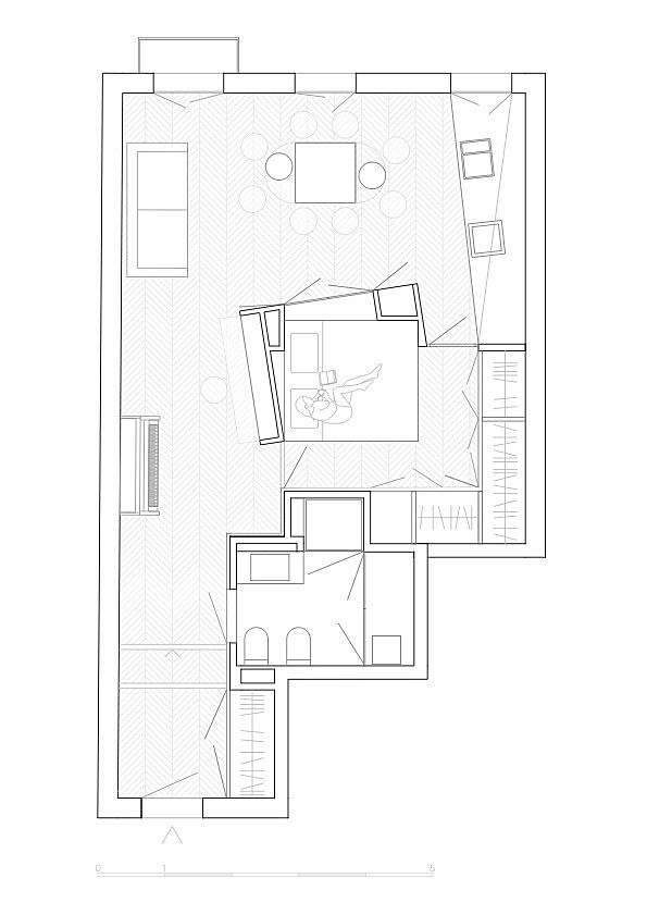
The floor plan presents challenges due to only 6 meters of wall with windows and a depth of 11 meters. We optimized the use of space through a radical design solution. The client desired a separate bedroom, and instead of dividing the space into two narrow rooms toward the exterior wall, we considered creating a room within a room with an interior window. This approach creates a sense of spatial flow, and the space actually appears more spacious, thanks to the numerous sightlines that allow you to see “through the furniture”. Additionally, the bathroom was expanded, enabling the creation of an entryway cabinet and a laundry nook at the back of the bathroom. The construction work was carried out by local artisans and craftsmen.
All walls and ceilings have been plastered with clay and painted with clay-based paint. We have carried out a study of internal relative humidity between this apartment and a neighbouring one with normal plasters. It turned out that clay plaster effectively reduces indoor humidity especially during the hot summer months. The floor is crafted from solid oak wood while the bathroom features solid leftover marble. We’ve also explored innovative technological solutions, such as wall heating: The living room’s clay plaster incorporates heating pipes that evenly distribute heat throughout the space.
The apartment is owned and occupied by a young couple. This is their first home and they did not have a large income or savings. At the time, the Italian government offered a 50% grant for renovation expenses when improving the apartment’s energy efficiency. In this case, energy efficiency was improved by providing the existing windows better glasses and sealing, by changing the heating system and updating the hot water boiler with a more efficient one. This project strives to demonstrate that with a careful design and execution, and with enough trust and will from the client, an ecological, aesthetically pleasing renovation can be not only possible but also affordable.
Martino De Rossi / Ark 5/2023
Location
Padua, Italy
Get directionsGallery









