Wuorio Commercial Building

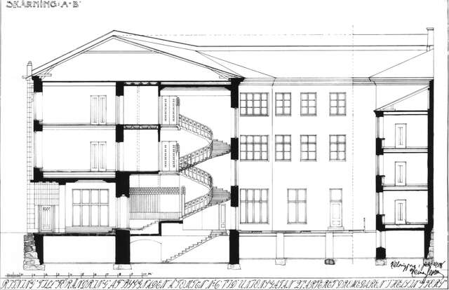
The Helsinki decorative painter and patron of cultural life, Salomo Wuorio, commissioned an office building for the headquarters of his paint business and a wallpaper and carpet shop. At the turn of the century, S. Wuorio’s company provided leaded glass and painted objects for numerous new buildings, of which most were designed by the Gesellius, Lindgren, Saarinen office, such as the Pohjola building and the Olofsborg condominium. A three-storey stone building had earlier stood on the site at Unioninkatu street 30. Its courtyard wings were preserved and renovated as wings to a new building designed by Herman Gesellius. In his design, the main stairwell and lift form the heart of the U-shaped whole. The new building contained business and office spaces, while the residential quarters were in the courtyard wing. Gesellius’s utilitarian nature as an architect, as well as his interest in structures and spatial planning, is visible in the Wuorio commercial building. The design reflected features adapted from continental office buildings. The façade is dominated by chamfered granite pillars framing large, prismatic glass surfaces. In its lightness, the building is more daring than the Lundqvist commercial building, which is a decade older. A surprising feature is a mosaic decoration hidden in the walls of the stairwell. The building was designed to be extended, a commission carried out by Armas Lindgren in 1913-1914.
Text: Juhana Lahti / 20th Century Architecture, MFA
Location
Unioninkatu 30, Helsinki
Get directionsGallery





















