Voimatalo Office Building
Aarne Ervi designed the headquarters of the Imatran Voima energy company which was completed in 1951.

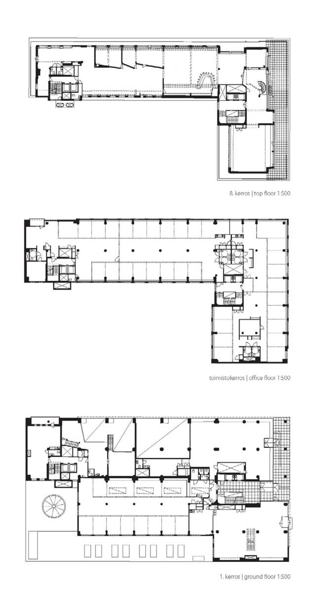
The office building was closely linked to the company’s extensive Oulujoki power plant projects, where new techniques such as those for concrete construction were being developed, and consequently, innovative concrete structures were also a prominent feature of Voimatalo. The top-floor restaurant, situated beneath the arching roof structure and the private dining rooms, with their elegant interiors, in particular, demonstrate the high status of this major postwar corporation. The meticulous planning of the interiors is very typical of Ervi’s buildings.
The circumstances preceding the building’s renovation were far from ideal. Due to passage of time and changes in occupancy, a considerable amount had been lost, including almost all of the original furnishing.s. Over the decades, substantial modifications had also been made to the building services engineering and especially to the ceilings. In the end, the top floor’s restaurant space was preserved more thoroughly than the other floors, where there had been made several changes to the original interiors. The office floors were renovated to up-to-date office spaces.
The principal architect of the project was Sarlotta Narjus. She was assisted by Erkki Ölander and Raisa Maunula. The project was completed in 2010.
Text: Finnish Architectural Review 2/2011
Location
Malminkatu 16, Helsinki
Get directionsGallery
























