University of Oulu Teacher Training School

The teacher trainings school was built for approximately 430 pupils with three parallel classes throughout the comprehensive school. The school building also consisted of facilities for teacher training and research.
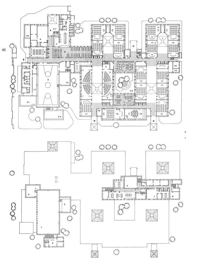
The school block is located between the Linnanmaa university campus and the adjoining centre of the Kaijonharju section of the city. In the east, where the residential areas are, the block is flanked by a park belt which will cater to pedestrian traffic in the future. The main outdoor recreation route network will be led through the park. To the south, the site is flanked by a block of student dormitories.
The area is flat and firm coniferous forest land. Some 200 metres to the north is Lake Kuivasjärvi. Facilities for the senior-level demonstration school and the senior secondary school are being built on the lakeshore.
The teaching facilities are on a single level, and the building is situated in the northern part of the flat site so that the yards for the elementary pupils are on the Kaitotie side and the yards for forms 3–6 on the south side. Games fields have been placed between the school and the student campus. Service traffic enters from the north. Cars can be parked in the public lot.
The skeleton of the plan is a main east-west spine along which the various facilities are grouped. The facilities for teachers, pupils and pupil care are on the upper floor. The facilities that are used by outsiders, or are noisy or highly specialized – such as the kitchen/dining hall, and the facilities for handicrafts and physical education – have been placed near the main entrance and can be partitioned into separate units.
The actual home classrooms with their adjoining teacher training facilities have been grouped into 4 clusters, or home areas, on the basis of age groups. There are also several entrances to help avoid problems with pupil movement during breaks. The school library is in the middle of the inner courtyard.
There are ‘training rooms’ for observation and for the instruction of student teachers, adjoined to each classroom. These rooms can also be partly or fully used as teamwork facilities opening into the main classroom. There are three mirrored-wall training rooms adjoining each studio classroom fitted with video and sound recording equipment for the purposes of research on teaching situations.
The basic dimensions and the structural system of the demonstration school allow future reallocation of premises without unreasonable structural alterations. The aim of the architectural plan was to achieve a stimulating and safe overall environment with an identity of its own, designed with the dimensions of a child in mind.
The frame is concrete cast in situ. The elevations and interiors are in red-brick, typical for the Postmodernist “Oulu school” architecture of that time.
Source: Finnish Architectural Review 7/1982
Location
Yliopistokatu 48, Oulu
Get directionsGallery


















