Stockholm Embassy of Finland

The planning of the Finnish Embassy in Stockholm began with a site survey in 1993. The official drawings were completed in 1996. The building was designed by Gullichsen Vormala Architects, Kristian Gullichsen being the principal architect. Gullichsen was assisted by architect Jyri Haukkavaara. The building was completed behind schedule, due to a long planning application phase and five-year appeal round, in 2002.
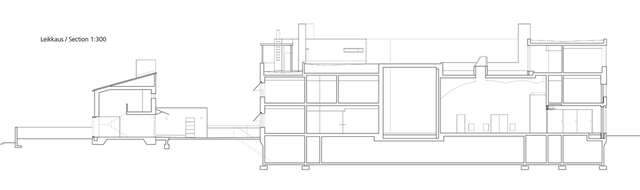
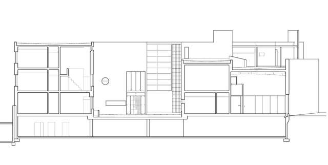
The principal architectural feature is the building’s long, wall-like street façade. With the sheltered courtyard references to the strongholds of Sweden and Finland’s common history are visible. The wall conceals the embassy building which is organised about the paved courtyard and a separate residential wing with its own yard and gardens. The embassy’s official suite opens out towards the open landscape of the Gärdet Park through one of the gardens.
Source: Finnish Architectural Review 1/2003
Location
Gärdesgatan 9–11, Stockholm, Sweden
Get directionsGallery

























