Savonlinna City Library Joeli

The Savonlinna City Library Joeli replaced the old city library, designed by architects Kaisa Harjanne and Maija Suurla (1964) in the heart of the city. The new library is located on a plot in the old railyard, outer skirts of the Savonlinna downtown.
The first plans of the new library were made already in 2009. Due to some difficulties and delays, the building was completed four years later, in 2013. Mikko Heikkinen and Markku Komonen designed the library. They were assisted by Janne Kentala, Markku Puumala and Kai Van Der Puij.
The exterior identity of the box-like library comes from the untreated larch façades. A whole range of symbols from the Savo region is cross-stitched into the metal grid hung in front of the main façade by artist Aimo Katajamäki: bears, ram heads, seals, castles steamboats etc.
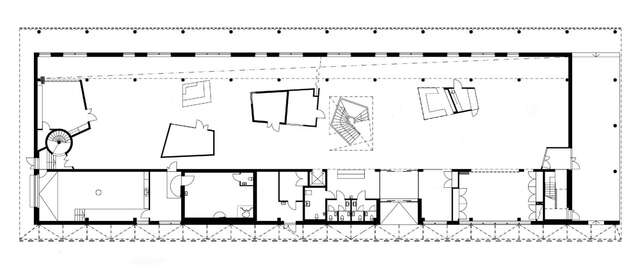
The modest main entrance is on Asematie road. Located on the ground level are the children’s library, as well as a news area and café. The space opens up only in the first-floor library hall, which is accessed via winding concrete stairs. The staff offices are hidden in a second-floor gallery.
Source: Finnish Architectural Review 3/2014
Location
Asemantie 5, Savonlinna
Get directionsGallery






















