Kuokkala Church
The building is reminiscent of typical Medieval Finnish church with triangular gable ends. At the same time, the architecture is very much contemporary.

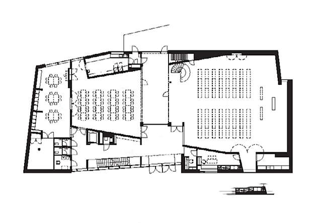
The design of the Kuokkala Church is based on the winning entry to an invited competition held in 2006, a work called Kide (’Crystal’).
The dark, black-painted shingle elevations and light, untreated wooden interiors form a strong match. The contrast between the exterior and interior is further emphasised by the occasional soft curvature of the interior: the funnel-shaped ceilings and the technically outstanding open spiral staircase.
Source: Finnish Architectural Review 2/2010
Architects
Competition
2006
Completion
2010
Gross Area
1311 m²
Category
Tags
Location
Syöttäjänkatu 4, Jyväskylä
Get directionsGallery







0) { resetZoom(); currentImageIndex--; currentImage = images[currentImageIndex].src; }"
@keydown.window.arrow-right="if (currentImageIndex < images.length - 1) { resetZoom(); currentImageIndex++; currentImage = images[currentImageIndex].src; }">
/















