Helsinki University Teacher Training School
Helsinki University Teacher Training School in Viikki provides primary as well as lower and upper secondary level education. The building is a place of work and study of 1200 people.

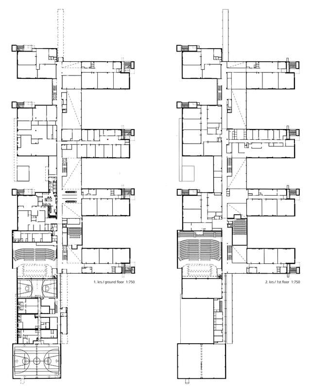
The restrictions of the limited plot area, together with the functional requirements largely dictated the basic form of the building. The main entrance of the school and the entrance court of the secondary school are at one end of the plot, and the primary school entrance and schoolyard at the other. A large number of building users requires clarity of spatial organisation; the yards are linked by an internal street, about which the classrooms for different subjects are grouped.
The school is located between blocks of multi-storey buildings, and it is tuned to the scale defined by the context. The exit route stairwells provide the basic rhythm of the elongated building mass and the street space. The school’s frame consists of reinforced concrete panel, and the building is organised in individual zones, which are reflected in the treatments and materials of the façades. The scale of the elevations fronting public areas, streets and entrance courts, is larger than that of the side and back walls of the more intimate study unit courts. The façades consist mainly of sandwich elements, with a finish of white concrete and variations of painted plywood and sheet steel surfaces.
The building was designed by architects Markku Erholtz, Hannu Huttunen and Jussi Karjalainen (ARK-House Architects) and was completed in 2003.
Text: Finnish Architectural Review 1/2004
Location
Kevätkatu 2, Helsinki
Get directionsGallery























