Helsinki Pop & Jazz Conservatory
The conservatory’s move in the 1990s transformed old brick factory buildings into music teaching spaces, unified by a new concert hall.

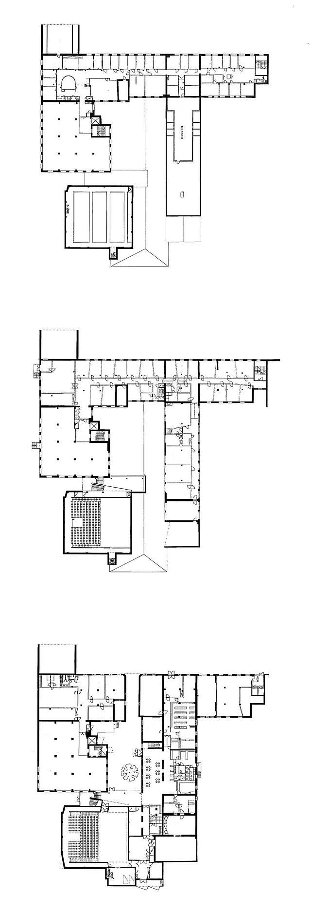
The Helsinki Pop & Jazz Conservatory – the most significant music school of its kind in Finland – moved to the old industrial district in Arabia in the mid-1990s. The premises are located in old brick buildings, some of them dating back to the 19th century. The facilities are group around a central courtyard. The one new building is a concert hall, which has a foyer whose glass wall closes the yard and also connects the buildings with each other.
The choice of weathering steel for the façade of the concert hall was inspired by the rusted bridges, rails and spiral staircases in the factory milieu.
The old brick surfaces in the interior were preserved wherever possible. The choice of colours and materials was designed to avoid any ’classical’ allusions as foreign to pop and jazz music. The two lowest floors in the old buildings were thoroughly renovated. Owing to a tight budget, renovation of the third floor was restricted to surface repairs and the improvement of sound insulation of the walls. One particular concern was the acoustics and soundproofing of the teaching facilities.
The concert hall was designed for 400 people. The interior of the hall is a so-called black box. The auditorium is collapsible, and the concert hall can also be used as a stage for a music theatre. The foyer and the recording studio can operate as independent units, without any interference to teaching.
The redevelopment was designed by Mauri Tommila, Yrjänä Vuojala, Antti Iskala, Paula Huotelin and Matti Hartikka from Tommila Architects.
Text: Finnish Architectural Review 5/1995
Location
Arabiankatu 2, Helsinki
Get directionsGallery












