Government Office Building in Joensuu

The government office building is located at the northern edge of the grid plan centre of Joensuu. It is flanked by apartment buildings and a red brick office building designed by Kurt Simberg in the late 1960s. The main entrances from the street and the yard have been placed on the pedestrian axis connecting the olf and new office buildings. The northeastern corner of the plot is free for further extensions.
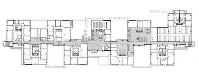
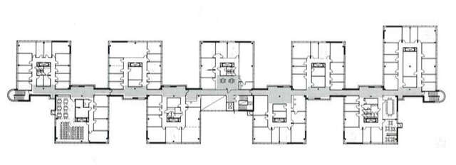
The buildings in the vicinity, mostly smallish apartment buildings, are built partly on the perimeter block principle, partly with only their gable ends touching the street. The massing reflects the principles followed in the surroundings, where the gable ends of fairly small component volumes define the street line of a semi-open block structure. A broad belt of planting has been left on the Pohjoiskatu side as by the neighbouring office building.
A clearly defined street space was created with walls and pergolas, raising the ground floor and Kauppakatu courtyards above the street level, and with trees. The spaces are grouped along a longitudinal main corridor. The corridor expands into a waiting foyer for each cell, with large windows. The internal traffic of the building does not disturb the offices since they open only onto corridors within their respective cells.
The government office building was designed by Gullichsen Kairamo Vormala Architects, Timo Vormala being the principal architect. He was assisted by architects Heikki Mäkinen, Maaret Pesonen, Aulikki Jylhä, Kristiina Hannunkari and Lasse Maaranen. The building was completed in 1990.
Source: Finnish Architectural Review 3/1990
Location
Kauppakatu 40, Joensuu
Get directionsGallery


























