EY Office and Residential Building

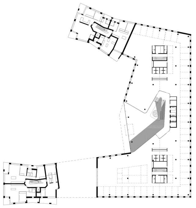
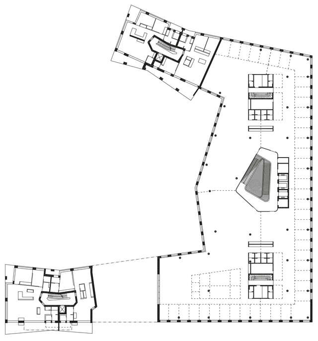
EY Office and Residential Building was constructed in 2014 as a result of an invited competition held in 2011. The competition was won by Verstas Architects. The building consists of an office building and two adjacent residential buildings.
The site is situated in Töölönlahti bay area, which lies right next to Helsinki Central railway station. It is located on a prominent site opposite to Alvar Aalto’s Finlandia Hall and has wide-open vistas towards Töölönlahti bay and its surroundings.
The exterior of the building is defined by a grid of vertical windows that intersects with the subtle twisting of the facade. The main entrance and lounge open towards Alvar Aalto Street and Finlandia Park. The interior is characterized by curving walls and a spiralling main staircase, cutting a void with skylights in the heart of the building.
The office floors provide EY with a flexible multi-space working environment. The open plan has designated teamwork and high focus zones as well as conference rooms, silent spaces and lounge areas.
The building has achieved LEED (Leadership in Energy and Environmental Design) Gold.
Location
Alvar Aallon katu 5, Helsinki
Get directionsGallery



































